- CENTURY 21 Real Estate
- Ohio
- Napoleon
- 0 Lynn Street
0 Lynn Street, Napoleon, OH 43545
Local realty services provided by:CENTURY 21 Bolte Real Estate
0 Lynn Street,Napoleon, OH 43545
$70,000
- 0.56 Acres
- Lots / Land
- Active
Listed by: steve lankenau
Office: re/max exclusive
MLS#:6110702
Source:OH_TBR
Price summary
- Price:$70,000
About this home
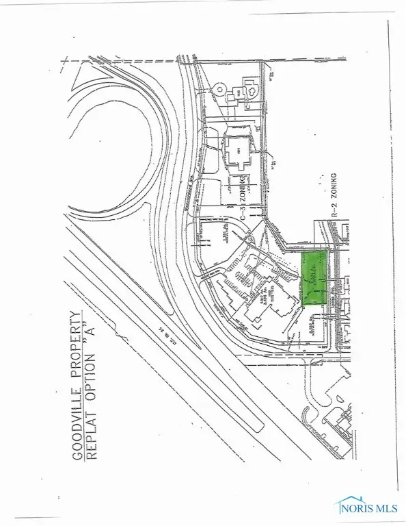
This commercial building lot places a business in the heart of new development just off the US 6/24 bypass immediately off the interchange. This lot is highly affordable and of a regular shape.
Contact an agent
Home facts
- Listing ID #:6110702
- Added:1099 day(s) ago
- Updated:January 31, 2026 at 02:25 PM
Structure and exterior
- Lot area:0.56 Acres
Schools
- High school:Napoleon
- Elementary school:Napoleon
Utilities
- Water:Public
- Sewer:Sanitary Sewer
Finances and disclosures
- Price:$70,000
New listings near 0 Lynn Street
- New
$565,000Active3 beds 3 baths2,340 sq. ft.20692 County Road X, Napoleon, OH 43545
MLS# 10003474Listed by: HOWARD HANNA - New
$175,000Active3 beds 3 baths2,664 sq. ft.140 Wayne Park Drive, Napoleon, OH 43545
MLS# 10003424Listed by: REISER REALTY - New
$137,000Active4 beds 2 baths2,304 sq. ft.424 S Perry Street, Napoleon, OH 43545
MLS# 10003381Listed by: KEY REALTY - New
$215,000Active3 beds 2 baths1,433 sq. ft.260 N Harmony Drive, Napoleon, OH 43545
MLS# 10003344Listed by: RE/MAX REALTY OF DEFIANCE - New
$175,000Active3 beds 2 baths1,575 sq. ft.819 W Main Street, Napoleon, OH 43545
MLS# 10003309Listed by: HOWARD HANNA
$399,900Active4 beds 3 baths2,276 sq. ft.1304 Clairmont Avenue, Napoleon, OH 43545
MLS# 10003258Listed by: ALLEN EDWIN REALTY, LLC
$159,900Active3 beds 2 baths1,344 sq. ft.504 E Main Street, Napoleon, OH 43545
MLS# 10003103Listed by: NORTHWEST REAL ESTATE SERVICES
$149,000Active3 beds 1 baths1,414 sq. ft.1204 Detroit Avenue, Napoleon, OH 43545
MLS# 10003090Listed by: HARMONY REALTY GROUP
$175,000Active3 beds 2 baths1,290 sq. ft.910 Melody Lane, Napoleon, OH 43545
MLS# 10002915Listed by: KIGAR REALTY & AUCTION
$165,000Pending3 beds 1 baths1,318 sq. ft.1114 Glenwood Avenue, Napoleon, OH 43545
MLS# 10002459Listed by: HOWARD HANNA