655 E Cleveland St, Carlton, OR 97111

Local realty services provided by:CENTURY 21 North Homes Realty
655 E Cleveland St,Carlton, OR 97111
$595,000
  • 5 Beds
  • 3 Baths
  • 2,423 sq. ft.
  • Single family
  • Pending
Listed by: michael wiltshire
Office: berkshire hathaway homeservices nw real estate503-538-2101
MLS#:496364246
Source:PORTLAND

Price summary

  • Price:$595,000
  • Price per sq. ft.:$245.56

About this home

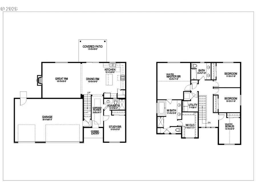
New Chad E Davis Construction! This modern two-story home has 9ft main floor ceilings and a great room with fireplace. The main level bedroom has an adjacent full bath making this an excellent choice for multi-generational living. The well-appointed kitchen offers quartz counters a generous island, ss appliances and a full tiled backsplash with subway tile. The vaulted primary suite has a full bath with soaking tub and generous walk in closet. The yard comes fully fenced and professionally landscaped with irrigation. Taxes TBD. No HOA.

Contact an agent

contact an agent

Yes, I would like more information. Please use and/or share my information with an independent agent affiliated with the CENTURY 21®  brand to contact me about my real estate needs. By clicking Send message, I request to be contacted by phone or text message and consent to being contacted by automated means. I understand that my consent to receive calls or texts is not a condition of purchasing any property, goods, or services. Alternatively, I understand that I can access real estate services by email or I can contact the agent myself.

If an independent agent affiliated with the CENTURY 21®  brand is not available in the area where I need assistance, I agree to be contacted by a real estate agent affiliated with another brand owned or licensed by Anywhere Real Estate (BHGRE® , Coldwell Banker® , Corcoran® , ERA® , Sotheby's International Realty® ).
 I acknowledge that I have read and agree to theTerms of useandPrivacy notice

Home facts

  • Year built:2026
  • Listing ID #:496364246
  • Added:56 day(s) ago
  • Updated:April 25, 2026 at 07:31 AM

Rooms and interior

  • Bedrooms:5
  • Total bathrooms:3
  • Full bathrooms:3
  • Bathrooms Description:Soaking Tub
  • Kitchen Description:Dishwasher, Disposal, Free Standing Range, Island, Microwave, Pantry, Plumbed For Icemaker, Quartz, Stainless Steel Appliance, Tile
  • Basement Description:Crawl Space
  • Living area:2,423 sq. ft.

Heating and cooling

  • Cooling:Heat Pump
  • Heating:Forced Air

Structure and exterior

  • Roof:Composition
  • Year built:2026
  • Building area:2,423 sq. ft.
  • Lot Features:Level
  • Architectural Style:2 Story, Modern
  • Exterior Features:Covered Patio, Fenced, Sprinkler, Yard
  • Foundation Description:Concrete Perimeter
  • Levels:2 Stories

Schools

  • High school:Yamhill-Carlton
  • Middle school:Yamhill-Carlton
  • Elementary school:Yamhill-Carlton

Utilities

  • Water:Public Water
  • Sewer:Public Sewer

Finances and disclosures

  • Price:$595,000
  • Price per sq. ft.:$245.56

Features and amenities

  • Amenities:Ceiling Fan, Double Pane Window(s), Garage Door Opener, High Ceilings, Laminate Flooring, Laundry, Vaulted Ceiling, Wall To Wall Carpet

Parking

  • Total parking spaces:3
  • Parking description:Driveway, On street
  • Garage spaces:3
MLS LogoAll information provided is deemed reliable but is not guaranteed and should be independently verified. The content relating to real estate for sale on this web site comes in part from the IDX program of the RMLS of Portland Oregon. Real estate listings held by brokerage firms other than CENTURY 21 North Homes Realty are marked with the RMLS logo and detailed information about these properties includes the names of the listing brokers. Copyright 2026 RMLS, Portland, Oregon. Last updated: April 25, 2026