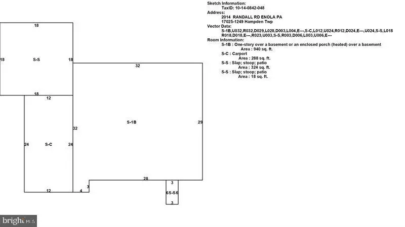
2014 Randall Rd, Enola, PA 17025
Local realty services provided by:CENTURY 21 Ryon Real Estate
2014 Randall Rd,Enola, PA 17025
$290,000
- 3 Beds
- 1 Baths
- 940 sq. ft.
- Single family
- Active
Listed by: virginia centini
Office: elite real estate professionals
MLS#:PACB2052640
Source:BRIGHTMLS
Price summary
- Price:$290,000
- Price per sq. ft.:$308.51
About this home
This home is perfect for someone who is just starting out or for someone who is ready to downsize. This is a cute rancher w/ an open floor plan. The kitchen, dining area and the LR are all open to each other in the front of the house. The back half of the house has 3 BRs and 1 full bath. There are HW floors in the LR and all BRs. The one BR does have carpet over the HW floor. The previous owner had the washer & dryer moved from the basement to a BR on the 1st floor. The fireplace in the LR does have an insert in it (the FP/chimney have not been used in many years - condition unknown) . The kitchen and the bathroom have both been remodeled. The bath has a walk-in shower w/ a seat. The full basement is unfinished. It has a concrete floor, a washer hook-up (no dryer hook-up) and an egress window. The home also has replacement windows, front and side doors. There is an attached carport w/ a concrete patio off the back. There is a 8'x14' shed in the back yard where you can put all your lawn and garden tools. The house is located on a corner lot. The property is close to Rt 81 & other highways, shopping, schools and hospital....
Contact an agent
Home facts
- Year built:1961
- Listing ID #:PACB2052640
- Added:6 day(s) ago
- Updated:April 19, 2026 at 01:49 PM
Rooms and interior
- Bedrooms:3
- Total bathrooms:1
- Full bathrooms:1
- Flooring:Carpet, Hardwood, Vinyl
- Dining Description:Combination Dining/Living, Combination Kitchen/Dining
- Bathrooms Description:Bathroom 1
- Kitchen Description:Dishwasher, Microwave, Oven/Range - Electric, Water Heater
- Basement:Yes
- Basement Description:Drain, Full, Sump Pump, Unfinished, Windows
- Living area:940 sq. ft.
Heating and cooling
- Cooling:Central A/C
- Heating:Forced Air, Oil
Structure and exterior
- Roof:Shingle
- Year built:1961
- Building area:940 sq. ft.
- Lot area:0.35 Acres
- Architectural Style:Ranch/Rambler
- Construction Materials:Brick
- Foundation Description:Block, Concrete Perimeter
- Levels:1 Story
Schools
- High school:CUMBERLAND VALLEY
- Middle school:MOUNTAIN VIEW
- Elementary school:SHAULL
Utilities
- Water:Public
- Sewer:Public Sewer
Finances and disclosures
- Price:$290,000
- Price per sq. ft.:$308.51
- Tax amount:$1,885 (2025)
Features and amenities
- Laundry features:Hookup, Washer/Dryer Hookups Only
- Amenities:Attic, Cable TV Available, Electric Available, Phone Available, Replacement Windows, Window Treatments
Parking
- Parking description:Attached Carport, On Street
New listings near 2014 Randall Rd
- Coming Soon
$349,900Coming Soon4 beds 3 baths501 Brick Church Rd, ENOLA, PA 17025
MLS# PACB2052886Listed by: COLDWELL BANKER REALTY
$370,000Pending3 beds 2 baths1,608 sq. ft.89 Beard Road, ENOLA, PA 17025
MLS# PACB2052864Listed by: IRON VALLEY REAL ESTATE OF CENTRAL PA
$1,349,900Pending6 beds 5 baths5,545 sq. ft.2301 Claridge Ct, ENOLA, PA 17025
MLS# PACB2052476Listed by: 1972 REALTY
$409,445Pending4 beds 4 baths2,007 sq. ft.53 Rail Yard Dr, ENOLA, PA 17025
MLS# PACB2052806Listed by: NVR, INC.
$399,255Pending3 beds 4 baths2,007 sq. ft.49 Rail Yard Dr, ENOLA, PA 17025
MLS# PACB2052808Listed by: NVR, INC.- New
$204,900Active2 beds 2 baths1,475 sq. ft.96 Queen Ave, ENOLA, PA 17025
MLS# PACB2052784Listed by: EXP REALTY, LLC - New
$254,900Active4 beds 2 baths1,560 sq. ft.917 Wertzville Rd, ENOLA, PA 17025
MLS# PACB2052778Listed by: KELLER WILLIAMS REALTY - Coming Soon
$239,900Coming Soon4 beds 2 baths761 Wertzville Rd, ENOLA, PA 17025
MLS# PACB2052642Listed by: HARRISBURG PROPERTY MANAGEMENT GROUP - New
$290,000Active3 beds 1 baths940 sq. ft.2014 Randall Rd, ENOLA, PA 17025
MLS# PACB2052640Listed by: ELITE REAL ESTATE PROFESSIONALS - Coming Soon
$275,000Coming Soon3 beds 3 baths59 Westwood Ct, ENOLA, PA 17025
MLS# PACB2052492Listed by: COLDWELL BANKER REALTY