1701 Montrose St, Philadelphia, PA 19146
Local realty services provided by:CENTURY 21 Home Team Realty
1701 Montrose St,Philadelphia, PA 19146
$285,000
- 0.01 Acres
- Lots / Land
- Pending
Listed by: michael t. dougherty
Office: serhant pennsylvania llc.
MLS#:PAPH2586668
Source:BRIGHTMLS
Price summary
- Price:$285,000
About this home
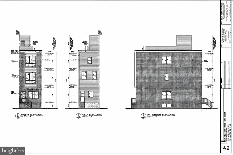
Presenting a rare corner lot opportunity in the heart of Graduate Hospital, directly across from Carpenter Green Park offering exceptional visibility, natural light exposure, and unmatched neighborhood presence. Zoned RM1 & Located in one of Philadelphia’s most desirable and rapidly appreciating communities, this prime parcel is ideally positioned just minutes from Center City, Rittenhouse Square, and the city’s premier dining, shopping, and cultural destinations. Enjoy walkable access to CHOP and UPenn, along with seamless connectivity to I-95, I-76, I-676, bridges to New Jersey, and Philadelphia International Airport. Surrounded by high-quality new construction and strong buyer demand, this property presents an outstanding opportunity for builders, developers, and end users alike. Whether envisioning a custom three-story luxury residence for personal use or a high-performing resale project, this lot offers the flexibility and location to support exceptional value. Architectural plans for a proposed three-story single-family home, detailed exterior elevations, and a professional geotechnical report are available, providing a clear and efficient path to development. Corner parcels of this caliber in Graduate Hospital are exceedingly rare making 1701 Montrose Street a premier opportunity to build, invest, and create in one of Philadelphia’s most sought-after neighborhoods. Reach out today....
Contact an agent
Home facts
- Listing ID #:PAPH2586668
- Added:51 day(s) ago
- Updated:April 15, 2026 at 07:37 AM
Structure and exterior
- Lot area:0.01 Acres
Utilities
- Water:Public
- Sewer:Public Sewer
Finances and disclosures
- Price:$285,000
- Tax amount:$1,923 (2025)
New listings near 1701 Montrose St
- New
$549,000Active4 beds -- baths1,844 sq. ft.107 Lockart Plz, PHILADELPHIA, PA 19116
MLS# PAPH2608086Listed by: DAN REALTY
$2,895,000Pending-- beds -- baths3,714 sq. ft.2147 Lombard St, PHILADELPHIA, PA 19146
MLS# PAPH2599100Listed by: RE/MAX CENTRE REALTORS- Open Fri, 5 to 7pmNew
$1,425,000Active3 beds 3 baths2,600 sq. ft.1322 Rodman St, PHILADELPHIA, PA 19147
MLS# PAPH2600692Listed by: COMPASS PENNSYLVANIA, LLC - Coming Soon
$465,000Coming Soon2 beds 2 baths1238 E Susquehanna Ave, PHILADELPHIA, PA 19125
MLS# PAPH2605274Listed by: KW EMPOWER - New
$225,000Active3 beds 1 baths1,262 sq. ft.3733 N Gratz St, PHILADELPHIA, PA 19140
MLS# PAPH2606272Listed by: CHAPEL REALTY SALES - New
$450,000Active2 beds 2 baths1,105 sq. ft.205-11 N 4th St #c5, PHILADELPHIA, PA 19106
MLS# PAPH2606968Listed by: RE/MAX ONE REALTY - Coming Soon
$260,000Coming Soon3 beds 1 baths1129 E Phil Ellena St, PHILADELPHIA, PA 19150
MLS# PAPH2607048Listed by: EXP REALTY, LLC - New
$500,000Active2 beds 2 baths1,174 sq. ft.1241-00 Buttonwood St #4c, PHILADELPHIA, PA 19123
MLS# PAPH2607602Listed by: PHILLY LMG, LLC - Coming Soon
$170,000Coming Soon5 beds 3 baths3935 N 8th St, PHILADELPHIA, PA 19140
MLS# PAPH2608054Listed by: HOMESMART REALTY ADVISORS - Coming Soon
$211,500Coming Soon3 beds 1 baths5537 Pemberton St, PHILADELPHIA, PA 19143
MLS# PAPH2608062Listed by: BELIEVE REALTY GROUP