N68W21252 Fairview Dr, Menomonee Falls, WI 53051
Local realty services provided by:CENTURY 21 Affiliated
N68W21252 Fairview Dr,Menomonee Falls, WI 53051
$195,000
- 0.4 Acres
- Lots / Land
- Active
Listed by: lara l heffernan
Office: berg elite realty
MLS#:1935531
Source:WI_METROMLS
Price summary
- Price:$195,000
About this home
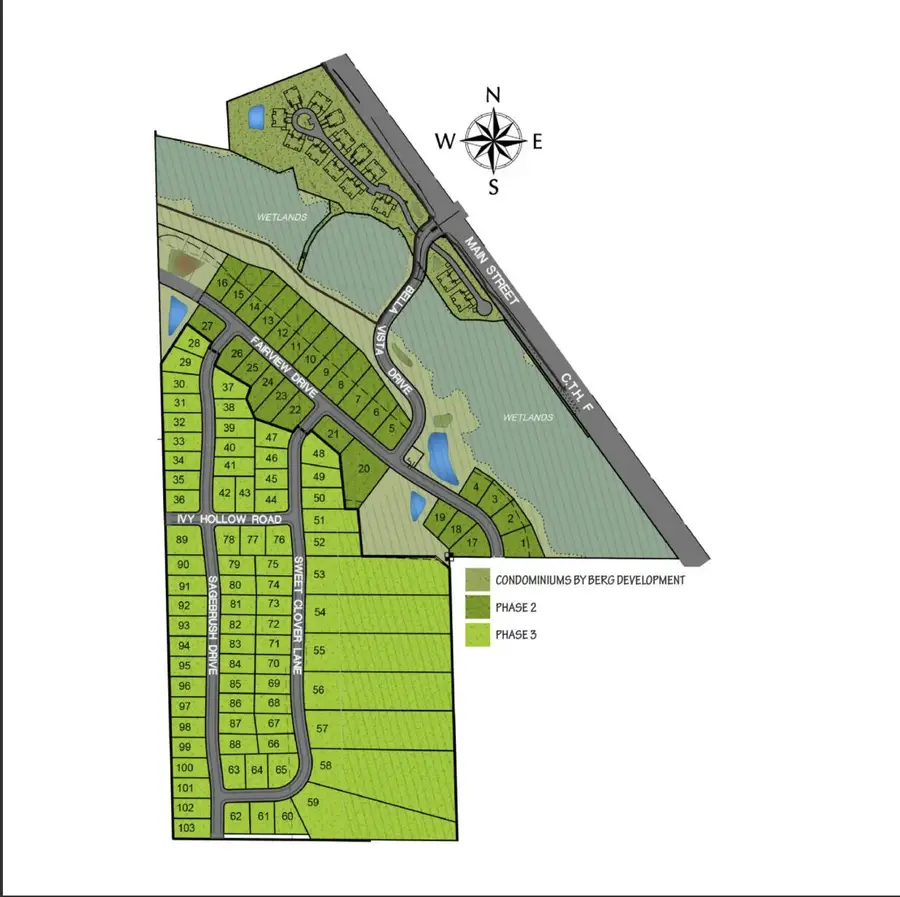
Secure Lot 9 in the prestigious Bella Vista Estates of Menomonee Falls. This homesite offers northeastern orientation, full walkout exposure, and serene wetland viewsideal for creating a residence that harmonizes with its natural surroundings. Exclusively available for construction with Berg Custom Homes, renowned for their commitment to quality and personalized design, this lot presents a unique opportunity to craft a home tailored to your lifestyle. Located within the esteemed Hamilton School District, Bella Vista Estates combines the tranquility of a secluded countryside setting with convenient access to urban amenities.
Contact an agent
Home facts
- Listing ID #:1935531
- Added:181 day(s) ago
- Updated:March 18, 2026 at 02:42 PM
Structure and exterior
- Lot area:0.4 Acres
- Lot Features:Wooded
Schools
- High school:Hamilton
- Middle school:Templeton
- Elementary school:Lannon
Utilities
- Sewer:Public Sewer
Finances and disclosures
- Price:$195,000
New listings near N68W21252 Fairview Dr
- New
$1,299,000Active4 beds 3 baths3,713 sq. ft.N51W18906 Quietwood Dr, Menomonee Falls, WI 53046
MLS# 1953971Listed by: REALTY EXECUTIVES - INTEGRITY - New
$1,399,000Active5 beds 4 baths3,871 sq. ft.N51W18847 Quietwood Dr, Menomonee Falls, WI 53051
MLS# 1953929Listed by: REALTY EXECUTIVES INTEGRITY-EAST TROY - New
$196,000Active0.36 AcresN57W19673 Holly Ct, Menomonee Falls, WI 53051
MLS# 1953657Listed by: RE/MAX SERVICE FIRST
$279,900Pending2 beds 1 baths1,002 sq. ft.W166N8430 Dardis Ave, Menomonee Falls, WI 53051
MLS# 1953631Listed by: KELLER WILLIAMS REALTY-MILWAUKEE SOUTHWEST- New
$399,000Active3 beds 3 baths1,926 sq. ft.W155N7081 Amberleigh Cir, Menomonee Falls, WI 53051
MLS# 1953618Listed by: THE WISCONSIN REAL ESTATE GROUP - Open Wed, 4:30 to 6pmNew
$439,900Active3 beds 2 baths1,717 sq. ft.W189N5050 Crest View Ter, Menomonee Falls, WI 53051
MLS# 1953393Listed by: THE WISCONSIN REAL ESTATE GROUP - New
$519,900Active3 beds 3 baths2,336 sq. ft.N64W15856 Wildflower Dr, Menomonee Falls, WI 53051
MLS# 1953339Listed by: QUORUM ENTERPRISES, INC. - New
$530,000Active3 beds 3 baths2,417 sq. ft.N80W13519 River Park Dr, Menomonee Falls, WI 53051
MLS# 1953097Listed by: KELLER WILLIAMS REALTY-MILWAUKEE NORTH SHORE
$944,900Pending4 beds 4 baths3,173 sq. ft.W208N5652 Turnberry Ln, Menomonee Falls, WI 53051
MLS# 1953086Listed by: TIM O'BRIEN HOMES
$479,900Active2 beds 2 baths1,720 sq. ft.N62W21743 Augusta Pkwy, Menomonee Falls, WI 53051
MLS# 1952979Listed by: KELLER WILLIAMS REALTY-MILWAUKEE NORTH SHORE