86 Hunters Way, Opelika, AL 36801
Local realty services provided by:CENTURY 21 Premier Real Estate
86 Hunters Way,Opelika, AL 36801
$246,440
- 2 Beds
- 2 Baths
- 1,183 sq. ft.
- Single family
- Active
Listed by: sawyer jones
Office: holland home sales
MLS#:178363
Source:AL_LCAR
Price summary
- Price:$246,440
- Price per sq. ft.:$208.32
About this home
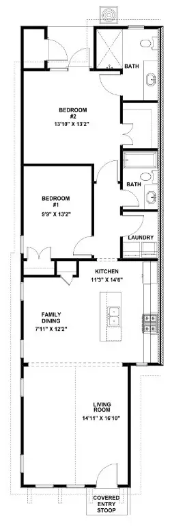
This presale home has a six month build timeframe. The Duette 3B is a two bedroom, two bathroom, 1183 square foot home. As you enter into the home, you enter into the living room that features large windows and vaulted ceilings. The living room leads to the open concept dining room and kitchen that features custom cabinets and a large center island. As you make your way to the back of the home, you will find the guest bedroom and guest bathroom and laundry room. The owners retreat rests on the back of the home and features an en suite bathroom and large walk-in closet as well as access to the back porch and outdoor storage closet.
Contact an agent
Home facts
- Year built:2025
- Listing ID #:178363
- Added:96 day(s) ago
- Updated:April 15, 2026 at 02:12 PM
Rooms and interior
- Bedrooms:2
- Total bathrooms:2
- Full bathrooms:2
- Flooring:Carpet, Plank, Simulated Wood
- Kitchen Description:Dishwasher, Disposal, Electric Range, Oven, Stove
- Bedroom Description:Primary Downstairs
- Living area:1,183 sq. ft.
Heating and cooling
- Cooling:Heat Pump
- Heating:Heat Pump
Structure and exterior
- Year built:2025
- Building area:1,183 sq. ft.
- Lot area:0.1 Acres
- Construction Materials:Cement Siding
- Exterior Features:Covered, Rear Porch, Sprinkler Irrigation
- Foundation Description:Slab
- Levels:1 Story
Schools
- Middle school:JETER/MORRIS
- Elementary school:JETER/MORRIS
Utilities
- Water:Water Available
- Sewer:Sewer Connected
Finances and disclosures
- Price:$246,440
- Price per sq. ft.:$208.32
Features and amenities
- Laundry features:Dryer Hookup
- Amenities:Pool, Primary Downstairs
- Pool features:Community, Pool
New listings near 86 Hunters Way
- New
$850,000Active5 beds 5 baths4,403 sq. ft.701 Blackberry Cove, Opelika, AL 36804
MLS# 180084Listed by: EXP REALTY - ACUFF WEEKLEY GROUP
$404,560Pending4 beds 2 baths2,191 sq. ft.2439 Lake Shadow Lane, Opelika, AL 36801
MLS# 180113Listed by: PORCH LIGHT REAL ESTATE LLC- New
$499,900Active4 beds 3 baths3,080 sq. ft.1005 Finn Court, Opelika, AL 36801
MLS# 180111Listed by: PRESTIGE PROPERTIES, INC. - Open Sat, 2 to 4pmNew
$310,000Active4 beds 4 baths2,556 sq. ft.865 Lismore Drive, Opelika, AL 36804
MLS# 180060Listed by: EXP REALTY - ACUFF WEEKLEY GROUP - New
$499,000Active5 beds 4 baths3,187 sq. ft.760 Owens Way, Opelika, AL 36804
MLS# 180098Listed by: THE TALONS GROUP - New
$410,198Active3 beds 2 baths1,442 sq. ft.3167 Bottle Way, Auburn, AL 36830
MLS# 180095Listed by: HOLLAND HOME SALES
$871,050Pending3 beds 3 baths2,403 sq. ft.2210 Quail Hollow, Opelika, AL 36801
MLS# 178753Listed by: NATIONAL VILLAGE REALTY BRANCH- New
$375,000Active4 beds 2 baths2,223 sq. ft.44 Lee Road 2119, Opelika, AL 36804
MLS# E103627Listed by: RICE REAL ESTATE SERVICES - Coming Soon
$749,000Coming Soon3 beds 3 baths3439 Lakeshore Drive, Opelika, AL 36804
MLS# 179885Listed by: KELLER WILLIAMS REALTY AUBURN OPELIKA - New
$394,000Active4 beds 3 baths2,575 sq. ft.930 CATHERINE DRIVE, Opelika, AL 36801
MLS# 21450425Listed by: BEYCOME BROKERAGE REALTY