236 Kobe Lane, Johnstown, CO 80534
Local realty services provided by:CENTURY 21 Top Dog Properties
236 Kobe Lane,Johnstown, CO 80534
$489,900
- 4 Beds
- 3 Baths
- 2,073 sq. ft.
- Single family
- Active
Listed by: tom ullrich
Office: re/max professionals
MLS#:7692246
Source:ML
Price summary
- Price:$489,900
- Price per sq. ft.:$236.32
- Monthly HOA dues:$37
About this home
***Contact builder today about Special Financing for this home - terms and conditions apply**
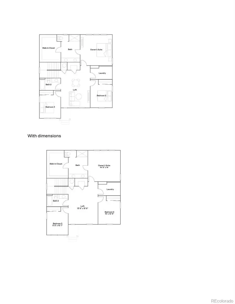
Available NOW!! This gorgeous Marigold 2-story in Ledge Rock features 4 beds (3 upper / 1 main), 2 baths, great room, kitchen, loft, 2 car garage and crawlspace. Beautiful upgrades and finishes throughout including vinyl plank floors, stainless steel appliances, slab Quartz counters and more. This builder provides the latest in energy efficiency and state of the art technology with several fabulous floorplans to choose from. Energy efficiency & technology/connectivity seamlessly blended with luxury to make your new house a home. What some builders consider high-end upgrades, the builder makes a standard inclusion. This community offers single family homes for every lifestyle. Close to dining, shopping, entertainment and other amenities. Don’t wait – this community will sell out quickly! Photos and walkthrough tour are model only and subject to change.
Contact an agent
Home facts
- Year built:2026
- Listing ID #:7692246
Rooms and interior
- Bedrooms:4
- Total bathrooms:3
- Full bathrooms:2
- Flooring:Carpet, Tile, Vinyl
- Kitchen Description:Dishwasher, Disposal, Kitchen Island, Microwave, Pantry, Refrigerator, Self Cleaning Oven
- Basement:Yes
- Basement Description:Crawl Space
- Living area:2,073 sq. ft.
Heating and cooling
- Cooling:Central Air
- Heating:Forced Air, Natural Gas
- Central air:Yes
Structure and exterior
- Roof:Composition
- Year built:2026
- Building area:2,073 sq. ft.
- Lot area:0.16 Acres
- Construction Materials:Frame
- Exterior Features:Private Yard, Rain Gutters
- Levels:2 Story
Schools
- High school:Roosevelt
- Middle school:Milliken
- Elementary school:Elwell
Utilities
- Water:Public
- Sewer:Public Sewer
Finances and disclosures
- Price:$489,900
- Price per sq. ft.:$236.32
- Tax amount:$4,850 (2025)
Features and amenities
- Laundry features:In Unit
- Amenities:Carbon Monoxide Detector(s), Double Pane Windows, Smoke Detector(s)
Parking
- Total parking spaces:2
- Parking description:Concrete Driveway, Tandem
- Garage:Yes
- Garage spaces:2
New listings near 236 Kobe Lane
- Open Sat, 11am to 1pmNew
$735,900Active6 beds 3 baths4,469 sq. ft.714 Jay Ave, Johnstown, CO 80534
MLS# 1057225Listed by: Redfin Corporation - New
$830,000Active5 beds 3 baths3,886 sq. ft.1120 N 5th St, Johnstown, CO 80534
MLS# 7869977Listed by: Priority Realty - New
$516,490Active4 beds 3 baths2,156 sq. ft.1993 Sorghum Way, Johnstown, CO 80534
MLS# 2071591Listed by: D.R. Horton Realty, LLC - New
$436,621Active3 beds 2 baths2,788 sq. ft.4825 Grapevine Way, Johnstown, CO 80534
MLS# 1057139Listed by: Mtn Vista Real Estate Co., LLC - New
$540,000Active3 beds 3 baths2,738 sq. ft.3963 Heatherwood Circle, Johnstown, CO 80534
MLS# 2292451Listed by: RE/MAX ADVANCED INC. - Open Sat, 12:30 to 2pmNew
$495,000Active4 beds 4 baths2,334 sq. ft.1817 Chesapeake Circle, Johnstown, CO 80534
MLS# IR1057088Listed by: ANDERSEN REAL ESTATE - New
$565,000Active4 beds 3 baths3,002 sq. ft.338 Hawthorne Avenue, Johnstown, CO 80534
MLS# IR1057075Listed by: NEXTHOME FOUNDATIONS - Open Sat, 11am to 1pmNew
$610,000Active4 beds 3 baths4,512 sq. ft.2248 Black Duck Ave, Johnstown, CO 80534
MLS# 1057053Listed by: Tallent Co. Real Estate - Open Sat, 11am to 1pmNew
$720,000Active5 beds 4 baths4,597 sq. ft.3859 Brunner Boulevard, Johnstown, CO 80534
MLS# IR1056978Listed by: RE/MAX ALLIANCE-LOVELAND - Open Sun, 11am to 2pmNew
$375,000Active2 beds 3 baths1,448 sq. ft.3905 Windwood Drive, Johnstown, CO 80534
MLS# IR1056916Listed by: KELLER WILLIAMS-ADVANTAGE RLTY