1715 Lisbon Drive Sw, Atlanta, GA 30310
Local realty services provided by:CENTURY 21 Realty 1 Professionals
1715 Lisbon Drive Sw,Atlanta, GA 30310
$450,000
- - Beds
- - Baths
- - sq. ft.
- Multi-family
- Coming Soon
Listed by: christopher tran, brian ortiz
Office: atlanta communities
MLS#:10737460
Source:METROMLS
Price summary
- Price:$450,000
About this home
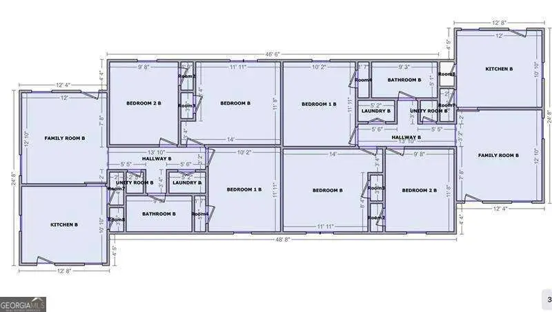
Fully renovated duplex in Southwest Atlanta offering exceptional flexibility for owner-occupants or investors. This move-in ready property features a total of 6 bedrooms and 2 full baths across two units, with extensive upgrades throughout. Brand New EVERYTHING including brand new hardwood flooring, fresh interior paint, brand new kitchen and bathrooms, new trim, new HVAC system, new water heater, new roof, new plumbing-providing peace of mind and low maintenance for years to come. Ideally located near the Atlanta BeltLine, Lee + White development, MARTA, parks, and Downtown Atlanta, this property offers convenient access to some of the city's most desirable amenities and growth areas. Perfect for house hacking, rental income, or multi-generational living. A rare opportunity to own a fully renovated duplex in a rapidly developing in-town location.
Contact an agent
Home facts
- Year built:1950
- Listing ID #:10737460
- Updated:April 21, 2026 at 01:32 PM
Heating and cooling
- Cooling:Central Air
- Heating:Central, Forced Air
- Central air:Yes
Structure and exterior
- Year built:1950
- Levels:1 Story
Schools
- High school:Carver
- Middle school:Sylvan Hills
- Elementary school:Perkerson
Utilities
- Water:Public
- Sewer:Public Sewer
Finances and disclosures
- Price:$450,000
Parking
- Parking description:Parking Pad
New listings near 1715 Lisbon Drive Sw
- New
$850,000Active3 beds 3 baths3,348 sq. ft.705 E Northway Lane, Atlanta, GA 30342
MLS# 10737438Listed by: Beacham & Company - Coming Soon
$1,250,000Coming Soon5 beds 5 baths124 Austin Drive, Atlanta, GA 30328
MLS# 10737439Listed by: Harry Norman Realtors - Coming Soon
$899,900Coming Soon4 beds 3 baths2181 Lebaron Drive Ne, Atlanta, GA 30345
MLS# 7756276Listed by: COMPASS - Coming Soon
$227,500Coming Soon1 beds 1 baths400 NW 17th Street #2322, Atlanta, GA 30363
MLS# 7756591Listed by: KELLER WILLIAMS RLTY, FIRST ATLANTA - New
$100,000Active3 beds 1 baths930 sq. ft.540 Lake Drive, Atlanta, GA 30354
MLS# 7756592Listed by: VIRTUAL PROPERTIES REALTY.COM - New
$115,000Active3 beds 1 baths952 sq. ft.544 Lake Drive, Atlanta, GA 30354
MLS# 7756597Listed by: VIRTUAL PROPERTIES REALTY.COM - New
$145,000Active2 beds 1 baths1,023 sq. ft.431 Pomona Circle Sw, Atlanta, GA 30315
MLS# 10737419Listed by: Virtual Properties Realty.com - New
$143,000Active2 beds 1 baths1,204 sq. ft.1948 Browns Mill Road Se, Atlanta, GA 30315
MLS# 10737420Listed by: Virtual Properties Realty.com - New
$134,000Active3 beds 2 baths1,083 sq. ft.1099 Forest Valley Drive Se, Atlanta, GA 30354
MLS# 10737421Listed by: Virtual Properties Realty.com