250 Plymouth Avenue Se #3, East Grand Rapids, MI 49506
Local realty services provided by:CENTURY 21 Affiliated
250 Plymouth Avenue Se #3,East Grand Rapids, MI 49506
$749,900
- 0.45 Acres
- Lots / Land
- Active
Listed by: nathan l whitmore
Office: whitmore realty llc.
MLS#:26017488
Source:MI_MICHRIC
Price summary
- Price:$749,900
About this home
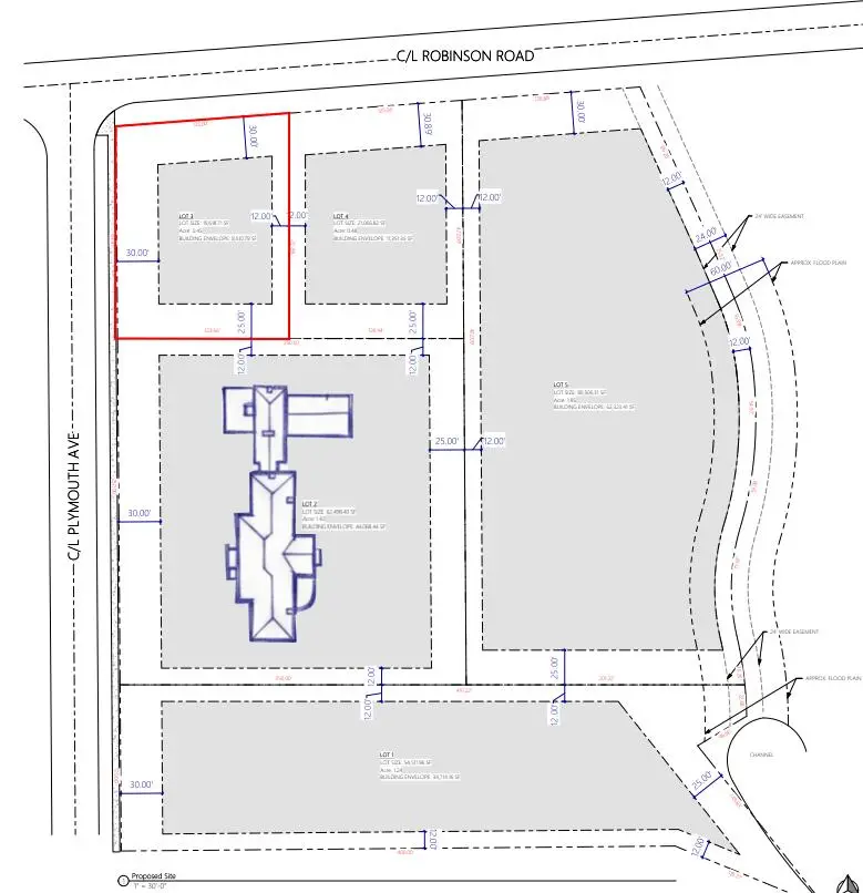
Presenting a rare opportunity to build your custom legacy on a premier .45-acre homesite situated at the prestigious corner of Robinson and Plymouth. Lot 3 holds a commanding presence within the historic Brookby Estate, sitting at a higher elevation than the rest of the property to offer a distinguished vantage point and unmatched curb appeal. This exclusive lot is nestled within the original footprint of one of West Michigan's most storied properties.
As an exclusive design-build opportunity with Whitmore Custom Homes, this parcel is part of a curated vision to introduce a new era of luxury residences that harmonize with the grandeur of the neighboring Georgian Revival mansion. Enjoy a mature, prestigious environment within walking distance of Gaslight Village and Reeds Lake, all while experiencing the Whitmore standard of high-end craftsmanship and fixed-price transparency.
Contact listing agent to schedule property tour 616-930-5298.
Note: Listing agent has a personal interest...
Contact an agent
Home facts
- Listing ID #:26017488
- Added:1 day(s) ago
- Updated:April 25, 2026 at 03:09 PM
Structure and exterior
- Lot area:0.45 Acres
- Lot Features:Buildable
Schools
- Elementary school:Wealthy School
Utilities
- Water:Public
- Sewer:Public Sewer
Finances and disclosures
- Price:$749,900
New listings near 250 Plymouth Avenue Se #3
$1,599,000Pending3 beds 4 baths3,143 sq. ft.2115 Lake Drive Se, East Grand Rapids, MI 49506
MLS# 26016655Listed by: GREENRIDGE REALTY (EGR)- New
$1,995,000Active5 beds 6 baths5,540 sq. ft.904 Plymouth Avenue Se, Grand Rapids, MI 49506
MLS# 26017817Listed by: KELLER WILLIAMS GR EAST - New
$725,000Active3 beds 3 baths2,052 sq. ft.694 Croswell, Grand Rapids, MI 49506
MLS# 70527441Listed by: B HOME & CO. - New
$475,000Active3 beds 2 baths1,534 sq. ft.1155 Lake Grove, Grand Rapids, MI 49506
MLS# 50205243Listed by: HOMECOIN.COM - New
$799,900Active3 beds 4 baths1,720 sq. ft.968 Gladstone, Grand Rapids, MI 49506
MLS# 70527265Listed by: GREENRIDGE REALTY (CASCADE) - New
$1,450,000Active5 beds 3 baths2,929 sq. ft.415 Lakeside Drive Se, Grand Rapids, MI 49506
MLS# 26017588Listed by: COLDWELL BANKER WOODLAND SCHMIDT GRAND HAVEN - New
$629,900Active3 beds 2 baths2,016 sq. ft.2126 Englewood Drive Se, Grand Rapids, MI 49506
MLS# 26017570Listed by: GREENRIDGE REALTY (EGR) - New
$749,900Active0.45 Acres250 Plymouth, East Grand Rapids, MI 49506
MLS# 70527189Listed by: WHITMORE REALTY LLC - New
$1,649,900Active1.85 Acres250 Plymouth Avenue Se #5, East Grand Rapids, MI 49506
MLS# 26017479Listed by: WHITMORE REALTY LLC