1219 Honeysuckle Lane, Cambridge, MN 55008
Local realty services provided by:CENTURY 21 Brainerd Realty, Inc.
1219 Honeysuckle Lane,Cambridge, MN 55008
$389,343
- 2 Beds
- 2 Baths
- 1,390 sq. ft.
- Single family
- Active
Listed by: jon d. jondahl group
Office: exp realty
MLS#:6821346
Source:NSMLS
Price summary
- Price:$389,343
- Price per sq. ft.:$280.1
About this home
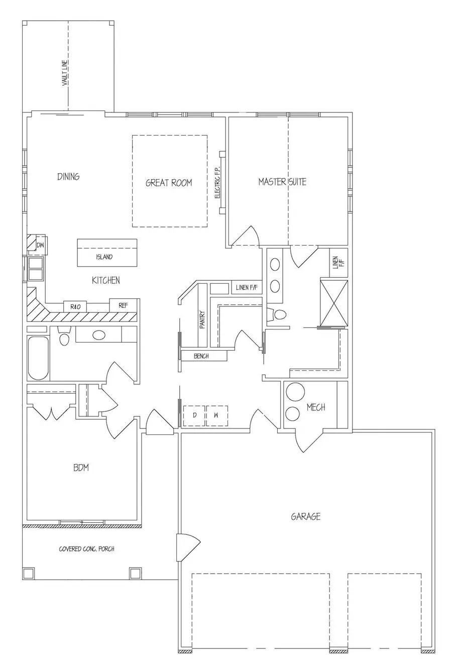
Welcome to Honeysuckle Villas, a beautiful new development in Cambridge offering brand-new one-level villas designed for comfort, simplicity, and style. These thoughtfully designed homes feature in-floor heat throughout, providing cozy warmth in every season, along with mini-split systems that offer both AC and a secondary heat source for year-round efficiency. Each villa offers an open-concept floor plan, 2 spacious bedrooms and 2 bathrooms, all with all living facilities on one level for easy, accessible living. Buyers can choose from three garage configurations to suit their lifestyle needs: a standard 2-car garage, a 3-car garage, or an oversized 3-car garage, ideal for additional storage, hobbies, or recreational vehicles. With no HOA association, you'll enjoy the freedom of homeownership without extra monthly fees or restrictions. Whether you're looking to downsize, simplify, or start fresh in a beautiful new community, Honeysuckle Villas offers the perfect place to call home. 3 BR layout also available. Don't miss your opportunity to build in this exciting new development. Let's start building your ideal home and easy-living lifestyle today!...
Contact an agent
Home facts
- Year built:2025
- Listing ID #:6821346
- Added:108 day(s) ago
- Updated:March 14, 2026 at 12:04 PM
Rooms and interior
- Bedrooms:2
- Total bathrooms:2
- Full bathrooms:1
- Dining Description:Breakfast Bar, Kitchen/Dining Room, Living/Dining Room
- Bathrooms Description:Main Floor Full Bath
- Kitchen Description:Dishwasher, Microwave, Range, Refrigerator
- Basement:Yes
- Living area:1,390 sq. ft.
Heating and cooling
- Cooling:Ductless Mini-Split
- Heating:Ductless Mini-Split, In-Floor Heating
Structure and exterior
- Roof:Age 8 Years or Less, Asphalt
- Year built:2025
- Building area:1,390 sq. ft.
- Construction Materials:Block
- Levels:1 Story
Utilities
- Water:City Water - Connected
- Sewer:City Sewer - Connected
Finances and disclosures
- Price:$389,343
- Price per sq. ft.:$280.1
Features and amenities
- Appliances:Microwave, Range, Refrigerator, Washer
- Laundry features:Dryer, Washer
- Amenities:Air-To-Air Exchanger
Parking
- Parking description:Attached Garage, Garage Door Opener
- Garage:Yes
- Garage spaces:3
New listings near 1219 Honeysuckle Lane
- New
$298,000Active4 beds 2 baths1,770 sq. ft.920 Cypress Street S, Cambridge, MN 55008
MLS# 7036026Listed by: RENTERS WAREHOUSE - Open Sat, 11am to 2pmNew
$315,000Active4 beds 2 baths1,667 sq. ft.1501 Elm Street S, Cambridge, MN 55008
MLS# 7016833Listed by: LPT REALTY, LLC - New
$415,000Active3 beds 2 baths2,190 sq. ft.2871 320th Avenue Nw, Cambridge, MN 55008
MLS# 7033500Listed by: TURPEN REALTY, INC. - New
$74,500Active2 beds 1 baths1,056 sq. ft.2150 Red Pine Drive, Cambridge, MN 55008
MLS# 7025965Listed by: CENTURY 21 MOLINE REALTY INC - New
$595,000Active3 beds 3 baths2,809 sq. ft.31883 Lakeway Drive Ne, Cambridge, MN 55008
MLS# 6814047Listed by: RE/MAX RESULTS - New
$199,900Active2 beds 2 baths1,428 sq. ft.1349 Ashland Place, Cambridge, MN 55008
MLS# 7019026Listed by: RE/MAX RESULTS - New
$377,900Active3 beds 3 baths1,623 sq. ft.418 Redwood Street N, Cambridge, MN 55008
MLS# 7032154Listed by: LGI REALTY-MINNESOTA, LLC - New
$389,900Active3 beds 2 baths1,684 sq. ft.605 Redwood Loop N, Cambridge, MN 55008
MLS# 7032158Listed by: LGI REALTY-MINNESOTA, LLC - New
$414,900Active4 beds 3 baths2,230 sq. ft.724 Spruce Street N, Cambridge, MN 55008
MLS# 7032162Listed by: LGI REALTY-MINNESOTA, LLC - New
$416,900Active4 beds 3 baths2,230 sq. ft.606 Redwood Loop N, Cambridge, MN 55008
MLS# 7032165Listed by: LGI REALTY-MINNESOTA, LLC