854 Schoolfield Drive, Sneads Ferry, NC 28460
Local realty services provided by:CENTURY 21 New Beginnings
854 Schoolfield Drive,Sneads Ferry, NC 28460
$418,649
- 4 Beds
- 3 Baths
- 2,354 sq. ft.
- Single family
- Active
Listed by: jessica d overby
Office: mungo homes
MLS#:100565040
Source:NC_CCAR
Price summary
- Price:$418,649
- Price per sq. ft.:$177.85
About this home
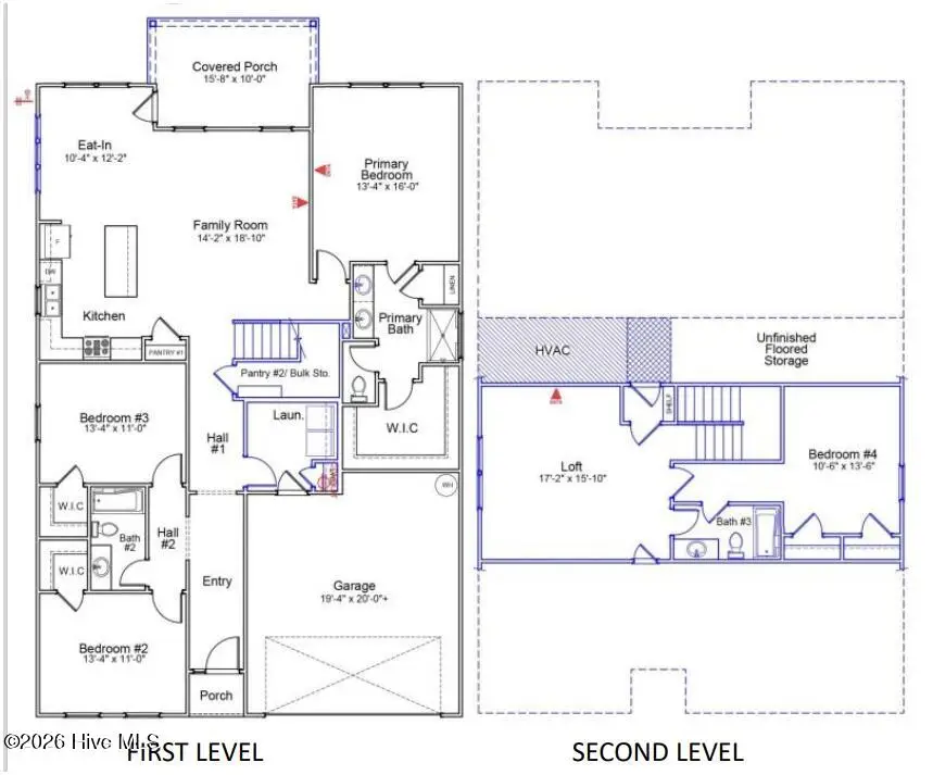
This Durham II is a four-bedroom, three bathroom one and a half story home with an open floor plan. The kitchen, with two pantries is open to the great room and eat-in and includes an island with breakfast bar. The primary room is split from the secondary bedrooms and features a large walk-in closet and an over-sized linen closet. Both secondary bedrooms also feature walk-in closets. The laundry room is conveniently located near the garage entry where there is plenty of storage in the linen closet. Upstairs you will find a large loft, fourth bedroom, full bathroom, additional closet and walk-in attic access.
Contact an agent
Home facts
- Year built:2026
- Listing ID #:100565040
- Added:1 day(s) ago
- Updated:April 06, 2026 at 10:17 AM
Rooms and interior
- Bedrooms:4
- Total bathrooms:3
- Full bathrooms:3
- Rooms Total:6
- Flooring:Carpet, Vinyl
- Bathrooms Description:Walk-in Shower
- Kitchen Description:Dishwasher, Disposal, Pantry
- Bedroom Description:Master Downstairs, Walk-In Closet(s)
- Living area:2,354 sq. ft.
Heating and cooling
- Cooling:Central Air
- Heating:Electric, Heat Pump, Heating
- Central air:Yes
Structure and exterior
- Roof:Architectural Shingle
- Year built:2026
- Building area:2,354 sq. ft.
- Lot area:0.16 Acres
- Lot Features:Dead End, Wooded
- Construction Materials:Vinyl Siding, Wood Frame
- Exterior Features:Covered, Porch
- Foundation Description:Slab
- Levels:1.5 Story
Schools
- High school:Dixon
- Middle school:Dixon
- Elementary school:Dixon
Utilities
- Water:Water Connected
- Sewer:Sewer Connected
Finances and disclosures
- Price:$418,649
- Price per sq. ft.:$177.85
Features and amenities
- Appliances:Dishwasher, Disposal
- Laundry features:Laundry Room, Washer Hookup
- Amenities:Ceiling Fan(s), Management, Solid Surface, Street Lights, Walk-In Closet(s)
Parking
- Total parking spaces:2
- Parking description:Attached, Attached Garage, Concrete
- Garage:Yes
New listings near 854 Schoolfield Drive
- New
$364,900Active3 beds 3 baths1,779 sq. ft.250 Marsh Haven Drive, Sneads Ferry, NC 28460
MLS# 100565023Listed by: COASTAL PROPERTIES - New
$539,900Active3 beds 4 baths3,210 sq. ft.600 Willbrook Circle, Sneads Ferry, NC 28460
MLS# 100564951Listed by: KELLER WILLIAMS INNOVATE - New
$605,000Active3 beds 3 baths2,234 sq. ft.305 Landon Lane, Sneads Ferry, NC 28460
MLS# 100564911Listed by: SIMPLY SOLD REALTY - New
$610,000Active3 beds 3 baths2,260 sq. ft.313 Landon Lane, Sneads Ferry, NC 28460
MLS# 100564912Listed by: SIMPLY SOLD REALTY - New
$555,000Active3 beds 3 baths1,813 sq. ft.319 Landon Lane, Sneads Ferry, NC 28460
MLS# 100564922Listed by: SIMPLY SOLD REALTY - New
$380,000Active3 beds 3 baths2,069 sq. ft.321 Windmill Light Way, Sneads Ferry, NC 28460
MLS# 100564865Listed by: BETTER HOMES AND GARDENS REAL ESTATE TREASURE 4 - New
$273,000Active3 beds 3 baths1,375 sq. ft.349 S Stingray Lane, Sneads Ferry, NC 28460
MLS# 100564764Listed by: CENTURY 21 COASTAL ADVANTAGE - New
$410,000Active4 beds 2 baths1,917 sq. ft.133 Delray Court, Sneads Ferry, NC 28460
MLS# 100564273Listed by: REAL BROKER LLC - New
$338,124Active3 beds 2 baths1,500 sq. ft.850 Schoolfield Drive, Sneads Ferry, NC 28460
MLS# 100564149Listed by: MUNGO HOMES