208 Ashland Ave, Egg Harbor, NJ 08234-0000
Local realty services provided by:CENTURY 21 Affiliated
208 Ashland Ave,Egg Harbor, NJ 08234-0000
$419,900
- 3 Beds
- 3 Baths
- 1,650 sq. ft.
- Single family
- Active
Listed by: christine gerbehy
Office: coldwell banker argus real estate-northfield
MLS#:603374
Source:NJ_SJSRMLS
Price summary
- Price:$419,900
- Price per sq. ft.:$254.48
About this home
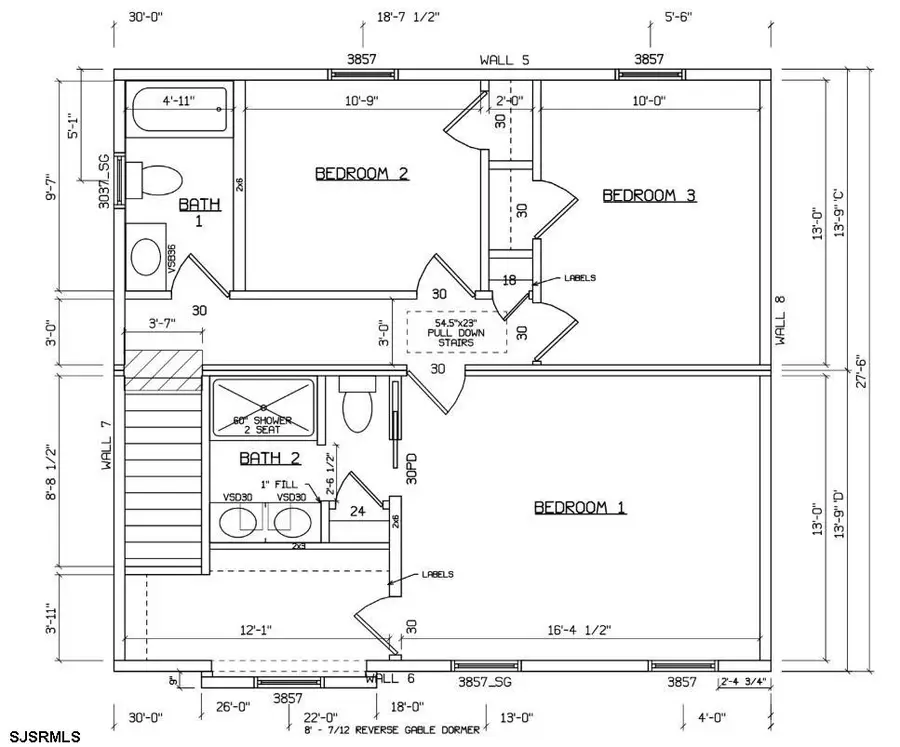
***NEW CONSTRUCTION*** This one will be shore to please! A brand new construction home offering the perfect blend of modern finishes, functional design, and the rare opportunity to customize your dream home. This 3-bedroom, 2 and a half bathroom 2 story residence will feature approximately 1,660 square feet of thoughtfully designed living space, all situated on a 5,000 square foot lot. The open-concept floor plan flows seamlessly from the living area into the upgraded kitchen, which will include quartz countertops, premium cabinetry, and a stainless steel appliance package. The spacious primary suite includes its own private bath with ample closet space. Additional highlights will include luxury vinyl plank flooring throughout, gas heat and a gas stove. Top that off with a 10x10 deck and you're good to go! Buyers who act early may have the opportunity to select finishes and make certain customizations during the build process. Please note, final pricing may vary based on any buyer-selected upgrades not originally planned. The final look of the outside is subject to change. Don’t miss this opportunity to own a brand-new, energy-efficient home in a convenient Egg Harbor Township location close to shopping, schools, and transportation....
Contact an agent
Home facts
- Year built:2026
- Listing ID #:603374
- Added:104 day(s) ago
- Updated:April 14, 2026 at 03:05 PM
Rooms and interior
- Bedrooms:3
- Total bathrooms:3
- Full bathrooms:2
- Half bathrooms:1
- Rooms Total:9
- Living area:1,650 sq. ft.
Heating and cooling
- Cooling:Ceiling Fan(s), Central
- Heating:Gas-Natural
Structure and exterior
- Year built:2026
- Building area:1,650 sq. ft.
- Construction Materials:Aluminum
- Exterior Features:Deck
- Levels:2 Story
Utilities
- Water:Public
- Sewer:Public Sewer
Finances and disclosures
- Price:$419,900
- Price per sq. ft.:$254.48
- Tax amount:$141 (2024)
New listings near 208 Ashland Ave
- New
$299,000Active3 beds 2 baths1,620 sq. ft.215 Booker Ave, EGG HARBOR TOWNSHIP, NJ 08234
MLS# NJAC2023914Listed by: BALSLEY-LOSCO REALTORS - New
$180,000Active2 beds 1 baths990 sq. ft.73B Oxford Vlg #73B, Egg Harbor Township, NJ 08234
MLS# 606692Listed by: KELLER WILLIAMS REALTY-MEDFORD - New
$220,000Active2 beds 1 baths814 sq. ft.232 London Ct #232, Egg Harbor Township, NJ 08234
MLS# 606693Listed by: PLATINUM REAL ESTATE - New
$279,000Active3 beds 1 baths976 sq. ft.6114 Delilah Road, Egg Harbor Township, NJ 08234-5521
MLS# 606678Listed by: LPT REALTY - New
$215,000Active2 beds 2 baths370 Heather Croft #370, Egg Harbor, NJ 08234
MLS# 606681Listed by: OCF REALTY, LLC - New
$499,000Active3 beds 2 baths2,102 sq. ft.217 Zion Road, Egg Harbor Township, NJ 08234
MLS# 606683Listed by: PLATINUM REAL ESTATE - Open Tue, 11:15am to 4:15pmNew
$389,990Active3 beds 2 baths1,497 sq. ft.237 Huntington Dr, EGG HARBOR TWP, NJ 08234
MLS# NJAC2023868Listed by: D.R. HORTON REALTY OF NEW JERSEY - New
$411,990Active4 beds 2 baths1,698 sq. ft.235 Huntington Dr, EGG HARBOR TWP, NJ 08234
MLS# NJAC2023870Listed by: D.R. HORTON REALTY OF NEW JERSEY - New
$495,985Active3 beds 3 baths1,748 sq. ft.233 Huntington Dr, EGG HARBOR TOWNSHIP, NJ 08234
MLS# NJAC2023872Listed by: D.R. HORTON REALTY OF NEW JERSEY - New
$495,985Active3 beds 3 baths1,748 sq. ft.229 Huntington Dr, EGG HARBOR TOWNSHIP, NJ 08234
MLS# NJAC2023874Listed by: D.R. HORTON REALTY OF NEW JERSEY