307 Collamer Road, Hilton, NY 14468
Local realty services provided by:CENTURY 21 Galloway Realty
307 Collamer Road,Hilton, NY 14468
$534,900
- 3 Beds
- 2 Baths
- 1,838 sq. ft.
- Single family
- Active
Listed by: janet l. campbell
Office: hunt real estate era/columbus
MLS#:R1666398
Source:NY_GENRIS
Price summary
- Price:$534,900
- Price per sq. ft.:$291.02
About this home
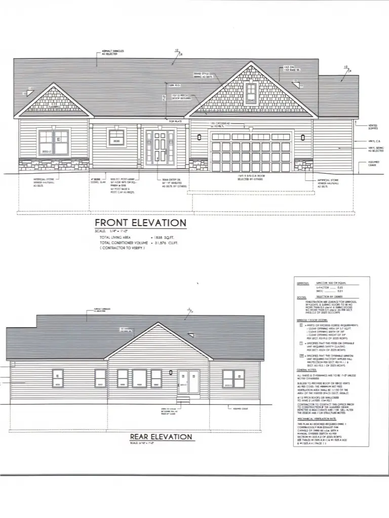
Enticing New Construction by Reger Construction in the Town of Parma, located in the highly desirable Hilton School district. Dig date is 4/23 with approx 5 months closing from the dig. Pride of workmanship throughout all our homes which are situated on .46 acre lot (100' x 233') with public water and sewer. This home offers one-level living, the perfect blend of an open design, thoughtful upgrades and everyday functionality. Enjoy the elegance of 9' ceilings throughout, upgraded 5" trim work and numerous quality finishes that add style and comfort. The stunning kitchen showcases beautiful quartz counter tops and flows seamlessly into the dining area and great room, creating a warm and inviting space. Quartz surfaces continue throughout the home adding both durability and sophistication. Convenience is key with first floor laundry room complete with a utility sink and cabinet plus a long counter top. This home includes a 12 course basement complete with central air, humidifier on furnace, interior walls dry locked along with an egress window. The exterior has vinyl siding complimented with stone and shake accents on the front, seeded lawn, 20' binder black top driveway. Built with attention to detail and enjoy the benefits of new construction and modern design along with the ease of one floor living. We make your building stress free and enjoyable. Taxes to be determined....
Contact an agent
Home facts
- Year built:2026
- Listing ID #:R1666398
- Added:50 day(s) ago
- Updated:May 02, 2026 at 02:51 PM
Rooms and interior
- Bedrooms:3
- Total bathrooms:2
- Full bathrooms:2
- Rooms Total:6
- Flooring:Carpet, Varies
- Dining Description:Living Dining Room
- Kitchen Description:Disposal, Kitchen Island, Pantry
- Basement:Yes
- Basement Description:Full, Sump Pump
- Living area:1,838 sq. ft.
Heating and cooling
- Cooling:Central Air
- Heating:Forced Air, Gas
- Central air:Yes
Structure and exterior
- Roof:Shingle
- Year built:2026
- Building area:1,838 sq. ft.
- Lot area:0.46 Acres
- Lot Features:Agricultural, Rectangular
- Architectural Style:Ranch
- Construction Materials:Shake Siding, Stone, Vinyl Siding
- Exterior Features:Open, Porch
- Foundation Description:Block
- Levels:1 Story
Utilities
- Water:Connected, Public, Water Connected
- Sewer:Connected, Sewer Connected
Finances and disclosures
- Price:$534,900
- Price per sq. ft.:$291.02
- Tax amount:$2
Features and amenities
- Appliances:Disposal, Humidifier
- Laundry features:Main Level
Parking
- Parking description:Attached, Driveway, Garage, Garage Door Opener, Water Available
- Garage:Yes
- Garage spaces:3
New listings near 307 Collamer Road
- Open Sun, 11:30am to 1:30pmNew
$244,900Active4 beds 2 baths2,068 sq. ft.191 Hamlin Center Road, Hilton, NY 14468
MLS# R1677396Listed by: RE/MAX TITANIUM LLC - New
$525,600Active3 beds 2 baths1,720 sq. ft.56 Post Avenue, Hilton, NY 14468
MLS# R1673241Listed by: HOWARD HANNA - Open Sun, 12 to 2pmNew
$179,000Active3 beds 2 baths1,224 sq. ft.376 Manitou Rd, Hilton, NY 14468
MLS# R1674177Listed by: HOWARD HANNA - New
$1,195,000Active4 beds 3 baths3,213 sq. ft.151 Ferguson Drive, Hilton, NY 14468
MLS# R1675627Listed by: HOWARD HANNA - Open Sun, 12 to 2pmNew
$599,900Active4 beds 3 baths2,513 sq. ft.Lot 1012 Via Angelo Custode, Hilton, NY 14468
MLS# R1675378Listed by: KELLER WILLIAMS REALTY GREATER ROCHESTER
$235,000Pending3 beds 2 baths1,310 sq. ft.5860 W Wautoma Beach Rd, Hilton, NY 14468
MLS# R1675546Listed by: RE/MAX PLUS
$249,900Pending3 beds 2 baths1,642 sq. ft.7 Pickett Lane, Hilton, NY 14468
MLS# R1675277Listed by: WCI REALTY
$549,900Pending4 beds 3 baths2,535 sq. ft.281 Collamer Rd, Hilton, NY 14468
MLS# R1674811Listed by: HUNT REAL ESTATE ERA/COLUMBUS
$489,000Active3 beds 3 baths1,969 sq. ft.lot 705 Sand Pebble Lane, Hilton, NY 14468
MLS# R1674816Listed by: HOWARD HANNA
$189,900Pending3 beds 2 baths1,480 sq. ft.767 Manitou Road, Hilton, NY 14468
MLS# R1671759Listed by: REAL BROKER NY, LLC