2093 W Irwin Way, Eugene, OR 97402

Local realty services provided by:CENTURY 21 Agate Realty
2093 W Irwin Way,Eugene, OR 97402
$450,000
  • 0.81 Acres
  • Lots / Land
  • Active
Listed by: jackie austin
Office: coldwell banker professional group
MLS#:217760007
Source:PORTLAND

Price summary

  • Price:$450,000

About this home

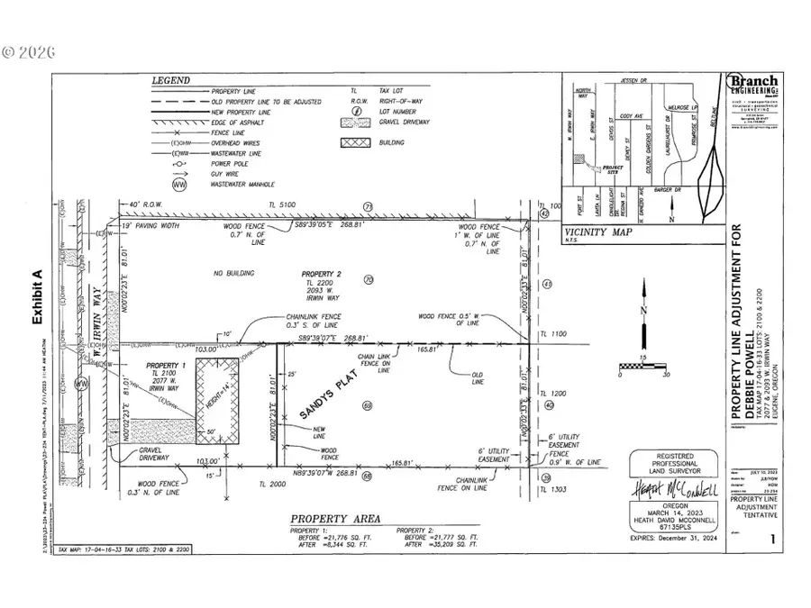
ATTENTION builders/developers incredible DEVELOPMENT opportunity on this .81 acre developable parcel. Potential for 5+ lots possibly up to 7 with middle housing development. Buyer to verify and do all due diligence. Located to the north and directly behind 2077 W Irwin. Fence line behind 2077 is off, parcel goes 5 feet into the fenced yard of 2077. Lot lines in photos are approximate. Seller owns 2077 and would possibly consider selling if further lot line adjustment is needed/beneficial to achieve more lots. Please do not disturb tenants in 2077 W Irwin. Rented temporary fencing around parcel. Selling as is. Owner willing to carry with large down and interest only payments for 2-3 years!

Contact an agent

contact an agent

Yes, I would like more information. Please use and/or share my information with an independent agent affiliated with the CENTURY 21®  brand to contact me about my real estate needs. By clicking Send message, I request to be contacted by phone or text message and consent to being contacted by automated means. I understand that my consent to receive calls or texts is not a condition of purchasing any property, goods, or services. Alternatively, I understand that I can access real estate services by email or I can contact the agent myself.

If an independent agent affiliated with the CENTURY 21®  brand is not available in the area where I need assistance, I agree to be contacted by a real estate agent affiliated with another brand owned or licensed by Anywhere Real Estate (BHGRE® , Coldwell Banker® , Corcoran® , ERA® , Sotheby's International Realty® ).
 I acknowledge that I have read and agree to theTerms of useandPrivacy notice

Home facts

  • Listing ID #:217760007
  • Added:1 day(s) ago
  • Updated:January 08, 2026 at 12:14 PM

Structure and exterior

  • Lot area:0.81 Acres

Schools

  • High school:Willamette
  • Middle school:Shasta
  • Elementary school:Clear Lake

Utilities

  • Water:Water Available

Finances and disclosures

  • Price:$450,000
  • Tax amount:$1,227 (2025)
MLS LogoAll information provided is deemed reliable but is not guaranteed and should be independently verified. The content relating to real estate for sale on this web site comes in part from the IDX program of the RMLS of Portland Oregon. Real estate listings held by brokerage firms other than CENTURY 21 Agate Realty are marked with the RMLS logo and detailed information about these properties includes the names of the listing brokers. Copyright 2026 RMLS, Portland, Oregon. Last updated: January 8, 2026