225 Bee Balm Road, McKinney, TX 75071
Local realty services provided by:CENTURY 21 Judge Fite Company
Upcoming open houses
- Tue, Apr 0710:00 am - 06:00 pm
- Wed, Apr 0810:00 am - 06:00 pm
- Thu, Apr 0910:00 am - 06:00 pm
- Fri, Apr 1010:00 am - 06:00 pm
- Sat, Apr 1110:00 am - 06:00 pm
Listed by: ben caballero888-872-6006
Office: homesusa.com
MLS#:21171864
Source:GDAR
Price summary
- Price:$799,990
- Price per sq. ft.:$209.26
- Monthly HOA dues:$125
About this home
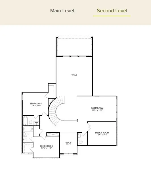
MLS# 21171864 - Built by Drees Custom Homes - Jul 2026 completion! ~ Discover this stunning new construction home, a traditional single-family residence in the desirable Trinity Falls subdivision. Spanning 3,823 sq. ft., this spacious layout features 4 primary bedrooms and 4 bathrooms plus powder bath, perfect for those seeking comfort and convenience. Double entry doors lead you into the heart of the home which boasts a curved staircase, open floorplan with an eat-in kitchen, pantry, and a cozy living area complete with gas log fireplace. The family room has soaring two story ceiling with lots of windows for natural light plus a wine bar perfect for entertaining. Primary bath features an oversized shower and freestanding tub plus yours and mine closets. A second bedroom down includes ensuite bath with shower. Enjoy ample space with three living areas and a single dining area, complemented by luxurious finishes like wood, ceramic tile, and plush carpet flooring. The property also features a covered patio-porch, ideal for outdoor relaxation. Situated on a generous lot, this home includes a sprinkler system for easy maintenance. Located within McKinney ISD, with Ruth and Harold Frazier Elementary nearby, it offers an exceptional lifestyle for all. Don't miss the chance to make this exquisite home yours!...
Contact an agent
Home facts
- Year built:2026
- Listing ID #:21171864
- Added:60 day(s) ago
- Updated:April 06, 2026 at 11:45 PM
Rooms and interior
- Bedrooms:4
- Total bathrooms:5
- Full bathrooms:4
- Half bathrooms:1
- Flooring:Carpet, Ceramic Tile, Wood
- Kitchen Description:Dishwasher, Disposal, Electric Oven, Gas Cooktop, Microwave, Vented Exhaust Fan
- Living area:3,823 sq. ft.
Heating and cooling
- Cooling:Central Air
- Heating:Central
- Central air:Yes
Structure and exterior
- Roof:Composition
- Year built:2026
- Building area:3,823 sq. ft.
- Lot area:0.19 Acres
- Lot Features:Greenbelt, Interior Lot, Lawn, Sprinkler System, Subdivision
- Architectural Style:Traditional
- Construction Materials:Brick, Fiber Cement
- Foundation Description:Slab
- Levels:2 Story
Schools
- High school:McKinney North
- Middle school:Johnson
- Elementary school:Ruth and Harold Frazier
Finances and disclosures
- Price:$799,990
- Price per sq. ft.:$209.26
Features and amenities
- Appliances:Dishwasher, Disposal, Electric Oven, Gas Cooktop, Gas Water Heater, Microwave, Tankless Water Heater, Vented Exhaust Fan
- Amenities:Carbon Monoxide Detectors, Smoke Detectors, Wireless
Parking
- Garage:Yes
- Garage spaces:3
New listings near 225 Bee Balm Road
$594,900Pending4 beds 4 baths2,574 sq. ft.2704 Panola Street, McKinney, TX 75071
MLS# 21230547Listed by: PERRY HOMES REALTY LLC- New
$674,900Active4 beds 3 baths3,379 sq. ft.2717 Cedar Valley Cove, McKinney, TX 75071
MLS# 21230575Listed by: PERRY HOMES REALTY LLC - New
$524,900Active3 beds 3 baths1,950 sq. ft.2712 Shady Branch Lane, McKinney, TX 75071
MLS# 21230598Listed by: PERRY HOMES REALTY LLC - New
$1,700,000Active8 beds 8 baths5,960 sq. ft.303 N Waddill Street, McKinney, TX 75069
MLS# 21184202Listed by: ACQUISTO REAL ESTATE - New
$367,617Active4 beds 3 baths2,337 sq. ft.1404 Bridgestone Drive, Princeton, TX 75071
MLS# 21227976Listed by: MERITAGE HOMES REALTY - New
$347,702Active4 beds 3 baths2,055 sq. ft.1402 Bridgestone Drive, Princeton, TX 75071
MLS# 21227977Listed by: MERITAGE HOMES REALTY - Open Sat, 1 to 3pmNew
$350,000Active3 beds 3 baths1,827 sq. ft.436 Somerville Drive, McKinney, TX 75071
MLS# 21229182Listed by: WILLIAM DAVIS REALTY - New
$599,900Active4 beds 4 baths2,574 sq. ft.8628 Katydid Drive, McKinney, TX 75071
MLS# 21230512Listed by: PERRY HOMES REALTY LLC - New
$529,900Active4 beds 2 baths2,038 sq. ft.1009 Lampassas Trail, McKinney, TX 75072
MLS# 21175931Listed by: LEN BUYSEE REALTY - New
$442,529Active4 beds 4 baths3,100 sq. ft.1407 Old Stead Drive, Princeton, TX 75071
MLS# 21227968Listed by: MERITAGE HOMES REALTY