19362 Weymouth Lane, Huntington Beach, CA 92646
Local realty services provided by:CENTURY 21 Adams & Barnes
19362 Weymouth Lane,Huntington Beach, CA 92646
$1,550,000
- 4 Beds
- 3 Baths
- - sq. ft.
- Single family
- Sold
Listed by: laura hennes
Office: realty one group west
MLS#:OC25247370
Source:CRMLS
Sorry, we are unable to map this address
Price summary
- Price:$1,550,000
About this home
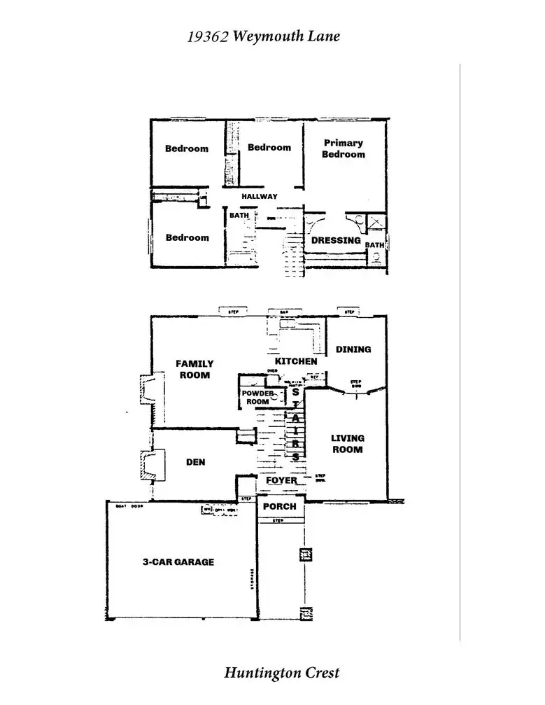
FIRST TIME ON THE MARKET! This very special, WELL-LOVED and SPACIOUS Huntington Crest home is situated on this extra large, wide corner of the lane in this fabulous neighborhood of picture perfect homes- freshly painted and ready for its new residents to make it their own dream home. Warm and welcoming solid oak double-door entry into the terrazzo-tiled foyer opens to the living room with large bay window view to the Zen stone garden. Afternoon sun streams into the entry and spacious living room with bay window views to the front yard and neighborhood. Just off the formal entry, beveled glass French doors lead into the spacious and versatile den/office or potential bedroom downstairs with fireplace. The formal dining room with sliding door to the backyard is adjacent to the living room and leads to the kitchen/family room. Morning sun streams into the cheery kitchen with a GREAT functional layout, featuring wood cabinets, solid surface counters, recessed lights, and a walk-in pantry. There’s a second wood burning fireplace in the family room and wall of windows/sliding door to the EAST-FACING backyard retreat with block wall surround. Ascend the stairs to all 4 bedrooms upstairs with wood flooring and dual pane windows. Notice there are no unsightly overhead utility lines on the street. The spacious primary bedroom suite is set apart from the other bedrooms and features separate dual vanities, a large closet in the dressing area, and private commode with a stall shower. Other features include hardwood floors, recessed lighting, central heating (2014), and water softening system (2016). Roof was replaced in 2014. Ample parking is available in your x-wide driveway and in your 3-car garage. RV parking could be possible on this x-large 6600 sq ft corner lot! THIS HOME could be yours for years to come. SUPERIOR LOCATION within an easy distance to most every convenience, including: Just 2.4 miles down Highway 39 to the Ocean and close to an amazing array of area amenities: Many houses of worship, fine restaurants/eateries, coffee shops, 5-Points shopping center, retail & shopping opportunities; Award-winning Huntington Beach Schools. This is a home you can grow into and one you will truly love!
Contact an agent
Home facts
- Year built:1966
- Listing ID #:OC25247370
- Added:128 day(s) ago
- Updated:February 21, 2026 at 07:23 AM
Rooms and interior
- Bedrooms:4
- Total bathrooms:3
- Full bathrooms:2
- Half bathrooms:1
- Flooring:Carpet, Laminate, Wood
- Kitchen Description:Dishwasher, Disposal, Electric Cooktop, Electric Oven, Microwave, Vented Exhaust Fan
Heating and cooling
- Heating:Fireplaces, Forced Air, Natural Gas
Structure and exterior
- Roof:Composition
- Year built:1966
- Lot Features:Back Yard, Corner Lot, Front Yard, Near Park, Near Public Transit, Sloped Up
- Architectural Style:Traditional
- Construction Materials:Stone Veneer, Stucco
- Exterior Features:Concrete, Covered, FrontPorch, RainGutters
- Foundation Description:Raised
- Levels:2 Story
Schools
- High school:Huntington Beach
- Middle school:Dwyer
- Elementary school:Peterson
Utilities
- Water:Public, Water Connected
- Sewer:Public Sewer, Sewer Connected
Finances and disclosures
- Price:$1,550,000
Features and amenities
- Appliances:Dishwasher, Disposal, Electric Cook Top, Electric Oven
- Amenities:All Bedrooms Up, Carbon Monoxide (CO2) Detector, Ceiling Fans, Dressing Area, Foyer Entrance, Gas Water Heater, Rain Gutters, Recessed Lighting, Solid Surface Counters, Walk In Pantry, Water Heater, Water Softner
New listings near 19362 Weymouth Lane
- New
$1,700,000Active4 beds 3 baths2,367 sq. ft.20542 Montauk, Huntington Beach, CA 92646
MLS# CRPW26031143Listed by: COAST REALTY SOLUTIONS, INC. - New
$1,100,000Active4 beds 2 baths1,293 sq. ft.8561 Glasgow Circle, Huntington Beach, CA 92647
MLS# OC26044548Listed by: ASD REALTY TEAM - Open Sat, 1 to 4pmNew
$2,795,000Active-- beds -- baths5,170 sq. ft.218 Indianapolis, Huntington Beach, CA 92648
MLS# SB26045471Listed by: VISTA SOTHEBYS INTERNATIONAL REALTY - Open Sun, 1 to 4pmNew
$599,999Active2 beds 1 baths861 sq. ft.4612 Via Vista Circle #5, Huntington Beach, CA 92649
MLS# OC26045107Listed by: RE/MAX FINE HOMES - New
$599,999Active2 beds 2 baths960 sq. ft.19891 Coventry Lane, Huntington Beach, CA 92646
MLS# OC26037366Listed by: REDFIN - Open Sat, 1 to 4pmNew
$2,795,000Active7 beds 5 baths5,170 sq. ft.218 Indianapolis, Huntington Beach, CA 92648
MLS# SB26045064Listed by: VISTA SOTHEBYS INTERNATIONAL REALTY - Open Sun, 1 to 4pmNew
$599,999Active2 beds 1 baths861 sq. ft.4612 Via Vista Circle #5, Huntington Beach, CA 92649
MLS# OC26045107Listed by: RE/MAX FINE HOMES - Open Fri, 10:30am to 1:30pmNew
$2,395,000Active4 beds 3 baths2,918 sq. ft.4082 Diablo Circle, Huntington Beach, CA 92649
MLS# OC26037092Listed by: COLDWELL BANKER-CAMPBELL RLTRS - New
$885,000Active3 beds 2 baths1,287 sq. ft.8655 Fresno Circle #501A, Huntington Beach, CA 92646
MLS# CROC26044855Listed by: REALTY ONE GROUP WEST - New
$885,000Active3 beds 2 baths1,287 sq. ft.8655 Fresno Circle #501A, Huntington Beach, CA 92646
MLS# OC26044855Listed by: REALTY ONE GROUP WEST