2670 Camp Mitchell Road, Grayson, GA 30017
Local realty services provided by:CENTURY 21 Results
Listed by: mindy cintron
Office: keller williams realty community partners
MLS#:7756856
Source:FIRSTMLS
Price summary
- Price:$1,485,000
About this home
Privately gated HOBBY FARM and EQUESTRIAN ESTATE on 8 FULLY FENCED ACRES less than 2 miles to grocery, restaurants, and everyday Gwinnett County conveniences. A rare combination buyers are actively searching for—ACREAGE, BARN, PASTURE, POOL, and a FULLY FINISHED TERRACE LEVEL—offering the space, freedom, and lifestyle that is increasingly hard to find this close to town.
Set behind a private gated entrance, a long tree-lined driveway framed by mature hardwoods creates a stunning approach, opening to expansive parking, multiple structures, and a property designed for true FARM, EQUESTRIAN, and HOMESTEAD living.
Mornings begin with coffee on the front porch as the sun rises over your land, while evenings end with breathtaking sunsets from the porch swing overlooking open pasture and peaceful surroundings. This is where privacy meets convenience, allowing you to live the FARM AND OUTDOOR LIFESTYLE without sacrificing proximity to everything Gwinnett County has to offer.
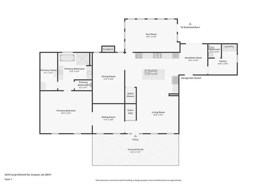
Inside, the home is thoughtfully designed with HARDWOOD FLOORING throughout the main level and an OPEN-CONCEPT layout filled with natural light. The kitchen anchors the home with an OVERSIZED QUARTZ ISLAND, DEEP COPPER FARMHOUSE SINK, POT FILLER, and generous prep space, seamlessly connecting to the main living areas. A separate dining room with fireplace frames backyard views, while the sunroom provides a bright, relaxing space with direct access to the back deck for seamless INDOOR-OUTDOOR LIVING.
The MAIN-LEVEL PRIMARY SUITE offers a private retreat with its own sitting area and a SPA-STYLE BATH featuring HIS-AND-HERS VANITIES, SOAKING TUB, WALK-IN SHOWER, and CUSTOM WALK-IN CLOSETS. The main level also includes a laundry room, pantry, and powder room designed for everyday function.
Upstairs, three additional bedrooms provide flexibility for family or guests, including a PRIVATE ENSUITE or SECOND PRIMARY SUITE, plus a shared bath with dual sinks.
The FULLY FINISHED TERRACE LEVEL creates a complete SECOND LIVING SPACE with FULL KITCHEN, BEDROOM, FULL BATH, DINING AREA, LIVING ROOM, and FIREPLACE—ideal for MULTI-GENERATIONAL LIVING, GUEST SUITE, or INCOME-PRODUCING OPPORTUNITY.
Outdoor living is where this property truly stands apart. A RESORT-STYLE SALTWATER POOL with HOT TUB and WATERFALL creates the ultimate entertaining space, while TWO OUTDOOR FIREPLACES provide multiple gathering areas—one poolside for hosting and another propane, smoke-free setting tucked near the barn for quiet evenings overlooking the pasture.
For those searching for a TRUE FARM, EQUESTRIAN PROPERTY, or HOMESTEAD, the land is fully equipped. The BARN includes FOUR STALLS, with MULTIPLE FENCED PASTURES ideal for rotating horses or livestock. GARDEN BEDS are already in place for growing your own food, and a CHICKEN COOP completes the self-sustaining lifestyle this property was designed for.
Car enthusiasts and hobbyists will appreciate the rare SIX-CAR CAPACITY, including a TWO-CAR GARAGE at the main home, TWO BAYS in the tractor shed, and TWO within the barn. The main garage also features a BUILT-IN WORKBENCH, creating a functional space for projects, tools, or equipment. Combined with the long driveway and open acreage, there is ample room for trailers, recreational vehicles, or additional parking.
Fully fenced, gated, and private with 8 acres, barn, pasture, pool, terrace level, and proximity to Gwinnett County conveniences—this is the type of HOBBY FARM, EQUESTRIAN PROPERTY, or LUXURY HOMESTEAD buyers search for but rarely find in this location....
Contact an agent
Home facts
- Year built:1986
- Listing ID #:7756856
- Updated:April 30, 2026 at 01:28 PM
Rooms and interior
- Bedrooms:5
- Total bathrooms:5
- Full bathrooms:4
- Half bathrooms:1
- Flooring:Hardwood
- Dining Description:Seats 12+, Separate Dining Room
- Bathrooms Description:Double Vanity, Separate His/Hers, Separate Tub/Shower
- Kitchen Description:Cabinets White, Dishwasher, Double Oven, Eat-in Kitchen, Electric Cooktop, Electric Range, Kitchen Island, Microwave, Pantry Walk-In, Range Hood, Self Cleaning Oven, Stone Counters, View to Family Room
- Bedroom Description:Master on Main, Sitting Room
- Basement Description:Daylight, Finished Bath, Full
Heating and cooling
- Cooling:Ceiling Fan(s), Central Air
- Heating:Central
- Central air:Yes
Structure and exterior
- Roof:Composition
- Year built:1986
- Lot Features:Back Yard, Farm, Front Yard, Landscaped, Pasture
- Architectural Style:Farmhouse, Traditional
- Construction Materials:Brick 4 Sides
- Exterior Features:Deck, Front Porch, Garden, Rain Gutters, Rear Porch, Rear Stairs
- Levels:3+ Story
Schools
- High school:Archer
- Middle school:McConnell
- Elementary school:Cooper
Utilities
- Water:Public, Water Available
- Sewer:Septic Tank
Finances and disclosures
- Price:$1,485,000
- Tax amount:$9,963 (2025)
Features and amenities
- Appliances:Irrigation Equipment
- Laundry features:Laundry Room, Main Level
- Amenities:Bookcases, Coffered Ceiling(s), Entrance Foyer, Walk-In Closet(s)
- Pool features:In Ground, Salt Water
Parking
- Total parking spaces:4
- Parking description:Covered, Driveway, Garage, Garage Door Opener, Garage Faces Side, Kitchen Level, Parking Pad
- Garage spaces:2
New listings near 2670 Camp Mitchell Road
- New
$700,000Active5 beds 4 baths5,235 sq. ft.851 Coopers Ridge Path, Grayson, GA 30017
MLS# 7761404Listed by: VIRTUAL PROPERTIES REALTY.COM - New
$375,000Active3 beds 3 baths1028 Bramble Way, Grayson, GA 30017
MLS# 7761510Listed by: REAL BROKER, LLC. - New
$350,000Active4 beds 2 baths1,939 sq. ft.1597 Bennett Road, Grayson, GA 30017
MLS# 7760898Listed by: KELLER WILLIAMS REALTY ATLANTA PARTNERS - New
$527,980Active5 beds 3 baths2,674 sq. ft.1368 High Falls Lane, Grayson, GA 30017
MLS# 7757298Listed by: MERITAGE HOMES OF GEORGIA REALTY, LLC - New
$555,980Active5 beds 3 baths2,950 sq. ft.1358 High Falls Lane, Grayson, GA 30017
MLS# 7757299Listed by: MERITAGE HOMES OF GEORGIA REALTY, LLC - New
$596,980Active5 beds 5 baths3,252 sq. ft.536 Tallulah Lane, Grayson, GA 30017
MLS# 7757300Listed by: MERITAGE HOMES OF GEORGIA REALTY, LLC - New
$525,980Active4 beds 3 baths2,479 sq. ft.531 Tallulah Lane, Grayson, GA 30017
MLS# 7757301Listed by: MERITAGE HOMES OF GEORGIA REALTY, LLC - New
$569,980Active5 beds 3 baths2,950 sq. ft.521 Tallulah Lane, Grayson, GA 30017
MLS# 7757302Listed by: MERITAGE HOMES OF GEORGIA REALTY, LLC - New
$524,980Active4 beds 3 baths2,412 sq. ft.526 Tallulah Lane, Grayson, GA 30017
MLS# 7757303Listed by: MERITAGE HOMES OF GEORGIA REALTY, LLC