3057 Robeson Trace, Johns Island, SC 29455
Local realty services provided by:CENTURY 21 The Harrelson Group
Listed by: suzanne scholz
Office: sm south carolina brokerage llc.
MLS#:25027348
Source:SC_CTAR
3057 Robeson Trace,Johns Island, SC 29455
$807,090
- 4 Beds
- 4 Baths
- 2,525 sq. ft.
- Single family
- Pending
Price summary
- Price:$807,090
- Price per sq. ft.:$319.64
About this home
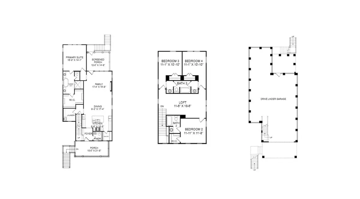
Upstairs, 3 bedrooms are situated around a loft area! One bedroom has ensuite bath and the 2 others share a Jack-and-Jill bath. List Price includes all options and upgrades for the home! Experience the charm of Johns Island, where a vibrant culinary scene, scenic parks, and lively community events create an inviting lifestyle. Ideally situated with convenient access to Downtown Charleston, world-class golf courses, and beautiful beaches!
Contact an agent
Home facts
- Year built:2025
- Listing ID #:25027348
- Added:166 day(s) ago
- Updated:May 02, 2026 at 07:38 AM
Rooms and interior
- Bedrooms:4
- Total bathrooms:4
- Full bathrooms:3
- Half bathrooms:1
- Flooring:Ceramic Tile, Laminate
- Kitchen Description:Eat-in Kitchen, Kitchen Island, Pantry
- Living area:2,525 sq. ft.
Heating and cooling
- Cooling:Central Air
- Central air:Yes
Structure and exterior
- Year built:2025
- Building area:2,525 sq. ft.
- Lot area:0.13 Acres
- Lot Features:Wooded
- Architectural Style:Traditional
- Foundation Description:Raised
- Levels:3 Story
Schools
- High school:St. Johns
- Middle school:Haut Gap
- Elementary school:Angel Oak ES 4K-1/Johns Island ES 2-5
Utilities
- Water:Public
- Sewer:Public Sewer
Finances and disclosures
- Price:$807,090
- Price per sq. ft.:$319.64
Features and amenities
- Laundry features:Laundry Room
- Amenities:Ceiling Smooth, High Ceilings
Parking
- Total parking spaces:9
- Parking description:2 Car Garage, 3 Car Garage, 4 Car Garage, Garage Door Opener
- Garage:Yes
- Garage spaces:9
New listings near 3057 Robeson Trace
- New
$1,250,000Active3 beds 3 baths2,692 sq. ft.4427 Hope Plantation Drive, Johns Island, SC 29455
MLS# 26012632Listed by: AKERS ELLIS REAL ESTATE LLC - New
$1,599,000Active5 beds 3 baths3,849 sq. ft.5010 Reese Lane, Johns Island, SC 29455
MLS# 26012605Listed by: PAM HARRINGTON EXCLUSIVES - New
$675,000Active4 beds 3 baths2,672 sq. ft.2701 Sunrose Lane, Johns Island, SC 29455
MLS# 26012622Listed by: CENTURY 21 PROPERTIES PLUS - Open Sun, 2 to 5pmNew
$523,990Active4 beds 4 baths2,141 sq. ft.425 Caledon Court, Johns Island, SC 29455
MLS# 26012621Listed by: SM SOUTH CAROLINA BROKERAGE LLC - New
$538,990Active4 beds 4 baths2,104 sq. ft.471 Caledon Court, Johns Island, SC 29455
MLS# 26012625Listed by: SM SOUTH CAROLINA BROKERAGE LLC - Open Sun, 1 to 3pmNew
$725,000Active5 beds 4 baths3,039 sq. ft.7089 Pumpkinseed Drive, Johns Island, SC 29455
MLS# 26012566Listed by: CAROLINA ONE REAL ESTATE - Open Sun, 1 to 3pmNew
$1,395,000Active6 beds 5 baths5,645 sq. ft.2258 Shad Drive, Johns Island, SC 29455
MLS# 26012542Listed by: CAROLINA ONE REAL ESTATE - New
$310,000Active1 beds 1 baths943 sq. ft.60 Fenwick Hall Allee Alley #314, Johns Island, SC 29455
MLS# 26012557Listed by: EXP REALTY LLC - Open Sun, 11am to 1pmNew
$620,000Active3 beds 3 baths2,442 sq. ft.3046 Grinnell Street, Johns Island, SC 29455
MLS# 26012538Listed by: DANIEL RAVENEL SOTHEBY'S INTERNATIONAL REALTY - New
$400,000Active0.56 Acres1733 Sailfish Drive, Johns Island, SC 29455
MLS# 26012533Listed by: CAROLINA ONE REAL ESTATE