2518 E 32, Cadillac, MI 49601
Local realty services provided by:CENTURY 21 Dynamic Realty
2518 E 32,Cadillac, MI 49601
$269,900
- 3 Beds
- 2 Baths
- 1,800 sq. ft.
- Single family
- Pending
Listed by: sue whipple
Office: city2shore real estate northern michigan
MLS#:78080066434
Source:MI_REALCOMP
Price summary
- Price:$269,900
- Price per sq. ft.:$149.94
About this home
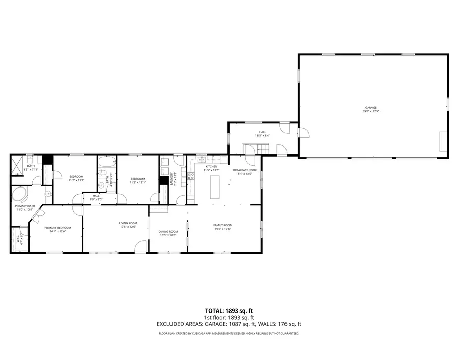
Welcome to this well-maintained 2002 manufactured home, perfectly situated on 4.63 acres offering a peaceful setting with plenty of room to enjoy the outdoors. This inviting property features three bedrooms and two full baths, providing comfortable living space for a variety of lifestyles. Over the years, thoughtful updates have been completed, including a new roof in 2022, some new windows in 2023, a new furnace in 2024, a new stove in 2024 and new countertops and backsplash in 2024, giving the home a fresh and updated feel. One of the standout features is the spacious breezeway that was recently added (2025), seamlessly connecting the home to the impressive three-stall garage. This versatile space offers endless possibilities, whether you need room for vehicles, recreational equipment or a dedicated workshop area. The property also includes an irrigation system in both the front and back yards, helping to keep the grounds looking their best throughout the seasons. Additional storage is available with a five-foot crawl space, providing convenient extra room when needed. Ideally located, this home is just a short drive from the well-known Boon Store, famous for its cheese and offers easy access to the north end of Cadillac. It is also well-positioned for a commute to Traverse City, making it a great option for those seeking both tranquility and convenience....
Contact an agent
Home facts
- Year built:2002
- Listing ID #:78080066434
- Added:57 day(s) ago
- Updated:May 26, 2026 at 07:33 AM
Rooms and interior
- Bedrooms:3
- Total bathrooms:2
- Full bathrooms:2
- Rooms Total:8
- Basement Description:Block, Interior Entry
- Living area:1,800 sq. ft.
Heating and cooling
- Heating:Forced Air, Propane
Structure and exterior
- Year built:2002
- Building area:1,800 sq. ft.
- Lot area:4.63 Acres
- Lot Features:Cleared, Rolling Slope, Sprinklers
- Architectural Style:Manufactured Deed Unknown, Manufactured with Land, Ranch
- Construction Materials:Vinyl Siding
- Exterior Features:Deck
- Foundation Description:Block, Crawl Space
- Levels:One
Utilities
- Water:Well
- Sewer:Septic Tank
Finances and disclosures
- Price:$269,900
- Price per sq. ft.:$149.94
Features and amenities
- Appliances:Dishwasher, Oven, Range, Refrigerator
Parking
- Parking description:Attached, Garage, Three Car Garage
- Garage spaces:3
New listings near 2518 E 32
- New
$200,000Active3 beds 2 baths1,533 sq. ft.414 S Simons, Cadillac, MI 49601
MLS# 78080068766Listed by: ERA GREATER NORTH PROPERTIES - New
$237,900Active2 beds 2 baths1,274 sq. ft.621 Cherry, Cadillac, MI 49601
MLS# 80068715Listed by: CITY2SHORE REAL ESTATE NORTHERN MICHIGAN - New
$1,200,000Active5 beds 2 baths2,508 sq. ft.1016 Sunnyside, Cadillac, MI 49601
MLS# 78080068691Listed by: FIVE STAR REAL ESTATE - MITCHELL ST CADILLAC - New
$195,000Active3 beds 1 baths968 sq. ft.218 Stimson, Cadillac, MI 49601
MLS# 78080068695Listed by: ERA GREATER NORTH PROPERTIES - New
$425,000Active4 beds 3 baths1,856 sq. ft.812 Brandon, Cadillac, MI 49601
MLS# 80068575Listed by: CITY2SHORE REAL ESTATE NORTHERN MICHIGAN
$599,900Active240 AcresE 34, Cadillac, MI 49601
MLS# 78080056297Listed by: COLDWELL BANKER SCHMIDT-CADILLAC
$250,000Pending3 beds 2 baths1,524 sq. ft.11670 E M-55, Cadillac, MI 49601
MLS# 80068519Listed by: FIVE STAR REAL ESTATE - MITCHELL ST CADILLAC- New
$150,000Active4 beds 1 baths1,532 sq. ft.1019 2nd, Cadillac, MI 49601
MLS# 78080068533Listed by: REO-CADILLAC-233028 - New
$175,000Active1.16 AcresTBD E Division, Cadillac, MI 49601
MLS# 78080068524Listed by: THREE WEST, LLC - New
$40,000Active2 beds 1 baths1,516 sq. ft.939 Sundberg Street, Cadillac, MI 49601
MLS# 26023562Listed by: RIVERTOWN REAL ESTATE, LLC